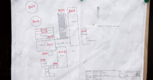
Utvikling gjennom 40 år: Oversikt over utvikling av bygningsmassen på Adelgaard.