Ny i verda: Ein trygg og lun start på livet for kalven borgar for god helse vidare i livet. Foto: Sjur Håland, Bondevennen
Alle båsfjøs skal ha kalvings-/sjukebinge frå 01.01.2024. I dei fleste båsfjøs kan dette løysast på ulike måtar utan større investeringar. Her viser vi døme på korleis du kan gjera det.
Torfinn Nærland, bygningsrådgivar og Kay Arne Aarset, veterinær
Tine Rådgiving Jæren og Agder
Svein-Åge Vangdal, bygningsrådgivar og Helene Sejersted Bødtker, veterinær
Tine Rådgiving Hordaland og Ryfylke
Kvifor kalvingsbinge? Kalvinga er ei stor fysisk påkjenning for kua og kalven. For å lette dette mest mogleg, bør dei ha tilgang til eit område med god plass. Kalvinga går lettast dersom kua kan gå laust i ein romslig binge. Kalv født på eit isolert og drenerande golv i ein kalvingsbinge vil kunne få ein god start på livet, og sikre at kalven bare kan suge råmjølk frå mora som sitt fyrste måltid.
Litt kalvingsetologi
Vanlegvis vil kyr som skal kalve trekke seg bort frå flokken omtrent eit døgn før kalving. Dei vil ofte søkje eit stille og beskytta område der kalvinga kan skje uforstyrra av andre dyr. Dersom dyr vert sleppte for tidleg inn i kalvingsbingen, eller blir plassert aleine langt og isolert frå resten av kyrne/kvigene, vil dei bli stressa av å bli haldt borte frå flokken. Då kan kalvinga gå i stå. Skal ein bruke bingar der dyra blir isolerte frå flokken, bør ein ha gruppebingar slik at fleire dyr kan gå der samtidig.
Golvet i kalvingsbingen
Kua/kviga vil ofte vera uroleg, reise og legge seg fleire gonger under kalvinga. Dyret er stort og tungt, ledda er svake og toler lite. Golvet må difor vera sklisikkert og utan trinn. På golvet bør det vera gummimatte med godt med strø, eller anna mjukt materiale som halm. Dette vil og hindre at den nyfødte kalven og at kua blir nedkjølt. Dette er særleg viktig dersom kua får mjølkefeber, då kua får kroppstemperatur under normalen. Mjølkefeber er den mest utbreidde kalvingsrelaterte sjukdomen vi har, og kua kan kome til å ligge i fleire dager. Mjukt underlag hindrar liggeskader. For å halde golvet i bingen mest mogleg hygienisk og reint frå fostervatn, mjølkesøl og urin, må dette drenerast bort. Halm som underlag er bra. Er ikkje dette ei aktuell løysing, bør det strødde golvet ovanpå gummimatte i bingen ha to-fire prosents fall slik at det blir drenert til sluk, rist eller spaltegolv. Golv med svakt fall vil også hjelpe når bingen vert vaska og skal tørke opp fram til neste bruk.
Utforming av bingen
Bingen bør leggast slik at det er så fri tilkomst som mogleg til den. Kua vil ha oversikt mot moglege farar under kalvinga. Ho vil legge seg med utsikt til bingen og arealet rundt, og bakenden vil bli pressa mot vegg i kalvingsbingen og kalven kan ikkje kome ut. Ideelt sett bør det difor vera eit opent areal rundt bingen, slik at bingesidene kan opnast for å enklare kunne hjelpe til under kalving, sjå binge 4 i illustrasjon. Dersom kortaste vegg er på minimumsmålet 2,3 m, er det ofte vanskeleg å kome til. Kortaste vegg bør helst vera 3 m. Høgde på bingevegg bør vera 1,3 – 1,6 m, der nedste halvpart bør vera tett for å hindre trekk og fordi kua ønsker å vera avskjerma. Av og til må dyret bindast opp eller settast fast, så det bør vera minst ein opning med fangfront, som kan losne kua både oppe og nede. Det er ikkje uvanleg at kyr som står i fangfront under kalving, får heil eller delvis krysslammelse grunna ein stor kalv. Dei vil då legge seg raskt. Då er det viktig å få losna kua fort, noko som kan vera svært vanskelig dersom fangfronten bare har opning oppe. Enkelte kyr er meir aktive til å passe på kalven sin – tenk HMS og rømmingsvegar i form av smal passasje eller grind som du kan kome deg ut av bingen gjennom. Bingen må vera lett å gjere rein mellom kvar kalving. Spanderer du på uttak for vatn og straum til høgtrykksvaskar ved bingen, vil vaskinga verte enkel å gjennomføre.
Plassering av bingen i fjøset
Bingen bør plasserast sentralt i fjøset, slik at du ofte kjem forbi kua. Eit overvakingskamera kan avlaste deg, og godt lys i bingen gjer gode arbeidsforhold. Bingen bør vera plassert nær ei ytterdør. Då vil det vera enkelt å få kua ut av bingen, dersom den stryk med eller må avlivast. Ved å legge bingen nær utgangsdør vert det òg enklare å fjerne strø og halm.
Mjølking av nykalva dyr
Du bør kunne mjølke fyrste målet på spann i bingen, utan å flytte den nykalva kua/kviga. Dette er mest skånsamt for eit sårbart dyr. Du må ha eit vakuum-uttak til spannmaskin i bingen. Dersom kua kan slikke kalven medan ho vert mjølka, vil kua/kviga verte mindre stressa og lettare gje ned mjølka. Ein boks eller flyttbar tralle til å ha kalven i framfor kua vil halde kalven på plass, medan du fikserer kua i fangfronten og låser av dyret sidevegs med ei svingbar grind. Då kan du mjølke kua sikkert i bingen.
Framtidig forbrukarkrav til kalv-ku-binge?
Forbrukarane stiller stadig nye krav til dyrevelferd og utforming av bygg til husdyr. Du bør difor tenke gjennom korleis kalvingsbingen kan tilfredsstille eit eventuelt framtidig (forbrukar-)krav til at kalven skal gå nokre dagar med kua. Det er sett i gang forsking, som etter kvart kan gje oss meir kunnskap og tips til korleis dette kan løysast.
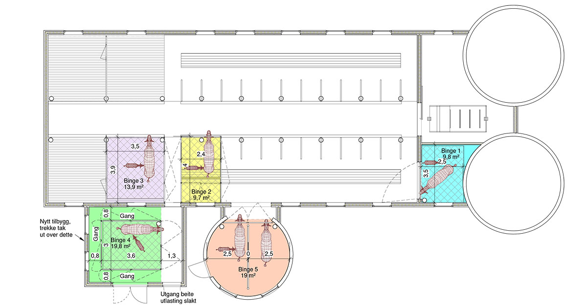
Smarte løysingar: Moglege kalvingsbingar i båsfjøs. Illustrasjon: Torfinn Nærland
Dømer på kalvings- og sjukebingar
På illustrasjonen er det fem ulike døme på utforming og plassering av ein kalvings- og sjukebinge i eit båsfjøs. Vi håper at du kan finne inspirasjon blant desse eigna til ditt bruk.
Binge 1 er lagt i eksisterande fôrrom. I mange fôrrom vil ofte kortaste vegg bli mindre enn kravet til minimum 2,3 m. Det bør vera mest mogleg opent inn til husdyrrommet for at kua ikkje skal oppleve å bli isolert. Deler av veggen er teke bort, og det er sett inn fangfront, som vert brukt som opning inn til bingen. For å sikre bingen mot trekk frå fôrluka i taket opp til løa, er det sett opp ny vegg. Skulle kua måtte avlivast eller stryke med, må me kunne heise kua opp via fôrluka, eller ei anna dør inn til bingen.
Binge 2 er ei enkel løysing ved at to kubåsar vert gjort om til ein kalvingsbinge. Det vert sett opp bingeskilje, som er hengsla slik at dei kan svingast. Dei korte skiljene hengsla på dei lange skiljene vert slått saman når bingen ikkje er i bruk, slik at det er fri passasje t.d. når kyrne skal ut på beite. Bingeskiljene kan opnast for å kome betre til når kua skal hjelpast. Det vert lagt gummimatter i bingen som drenerer til ei 5-10 cm opning midt over stålrista. Det er enkelt å få ut dyr via dør ut til beite. Ulempa her er at me brukar to båsar til mjølkekyr, som vil redusere produksjonen.
Binge 3 er ein fullspaltebinge som vert gjort om til kalvingsbinge. Det er laga tett bingeareal av ein treplatting med svakt fall mot spaltene i bakkant, eller mot spaltearealet i nabobingen. Her vil me redusere produksjonen tilsvarande det bingen vert nytta til i dag.
Binge 4 er eit nytt tilbygg på langsida av fjøset ved dagens dør ut til beite/utlasting slakt. Tak over tilbygget er trekt ut frå langveggen. Ved å fjerne døra og vindauget mellom båsfjøset og bingen vil dyret bli noko mindre isolert. Det er gangareal rundt heile bingen. Dersom kua legg seg med bakenden mot bingeskillet, kan du ta bort/svinge ut bingeskilja mellom bingeareal og gang når kua kalvar og du skal hjelpe. Golvet i bingen kan drenere inn til gjødsellageret i båsfjøset, gjennom ei luke til å måke gjødsla dit, eller du kan ha halm som underlag i bingen.
Binge 5 viser korleis du kan nytte bygningsareal som er gått ut av bruk. Dette kan vera ein kondemnert tårnsilo, eit tilbygg eller del av eit sau- eller grisehus. Ligg dette arealet noko isolert frå båsfjøset, bør du flytta inn to eller fleire dyr saman. Her er det plass til to kyr samtidig, og bingen kan delast i to ved ei hev- og senkegrind ved behov.
Krav til kalvings- og sjukebinge
- Det skal vera eigne bingar til dette føremålet. Bingane kan nyttast til både sjuke-/behandlingsbinge og som kalvingsbinge. Bingane skal ikkje nyttast til midlertidig oppstalling av dyr i andre situasjonar.
- Det er vanlegvis ikkje nok å sette av plass til midlertidige sjuke-/kalvingsbingar, som raskt og enkelt kan settast opp av grinder eller liknande.
- Bingane bør plasserast i områder der dei fleste av dyra elles står.
- Enkeltbinge for ku og kalv bør ha eit areal på 8-10 m2, kortaste vegg minimum 2,3 m.
- For gruppebingar (når fleire dyr skal bruke bingen samtidig) bør det vera minimum 8 m2 per dyr. Kortaste vegg bør då vera minimum 3 m i bingar for grupper opp til tre dyr, og minimum 5 m for bingar for grupper på over tre dyr
- Det skal vera ein kalvings-/sjukebinge per 25 påbyrja kyr i fjøset. Ved konsentrert kalving bør det ikkje vera meir enn 12-15 kyr per kalvingsbinge.
- Minst 50 prosent av arealet i bingen skal vera tett golv. Liggearealet skal vera minst like mjukt som liggeplasser elles. Kalvingsbingar skal ha eit tjukt strøbedd for kua.
- Må vera mogleg å fiksere dyra i bingen.
- Behandlings-/sjukebinge skal nyttast ved behandling av sjuke dyr.
Kjelde: Forskrift om hold av storfe og veileder til forskrift om hold av storfe


